| App Temperature Bound List |
| Materiál | Stredná teplota ℃ | Materiál | Stredná teplota ℃ | |||||||||||||||||||||||||||||||||||||||||||||||||||
| PVC-C | -20 ℃ ~ 95 ℃ | PVC-U | -5 ℃ ~ 45 ℃ | |||||||||||||||||||||||||||||||||||||||||||||||||||
| FRPP | -20 ℃ ~ 120 ℃ | PPH | -20 ℃ ~ 110 ℃ | |||||||||||||||||||||||||||||||||||||||||||||||||||
| PVDF | 40 ℃ ~ 150 ℃ | |||||||||||||||||||||||||||||||||||||||||||||||||||||
| Štrukturálne vlastnosti produktu |
1. Vynikajúca tepelná odolnosť
Vystužený polypropylén je materiál vyrobený pridaním sklenených vlákien do čistého PP, čím sa rozširuje rozsah jeho použitia. Jeho zvýšená tepelná odolnosť prekonáva inherentnú nevýhodu mechanickej pevnosti PP, pričom zachováva jeho vynikajúcu odolnosť proti korózii a zvyšuje jeho prevádzkovú teplotu.
2. Vysoká mechanická pevnosť a vynikajúca odolnosť proti opotrebovaniu
Jeho pevnosť, tuhosť, tvrdosť a tepelná odolnosť prevyšuje nízkotlakový polyetylén.
Jeho nízky koeficient lineárnej rozťažnosti poskytuje vynikajúcu odolnosť voči kyselinám, zásadám a teplu.
3. Vynikajúca nárazová húževnatosť
Zmrštenie výlisku: 1,0-2,5%, výrazne znižuje zmršťovanie a výrazne zlepšuje tuhosť. Ponúka vynikajúce elektrické vlastnosti a vysokofrekvenčnú izoláciu, ktorú neovplyvňuje vlhkosť.
4. Široká škála aplikácií
FRPP sa vďaka svojim nízkym nákladom na materiál, dlhej životnosti a jednoduchej inštalácii široko používa v potrubných systémoch pre chemický priemysel, priemysel na výrobu chemických vlákien, chlór-alkálie, farbivá, zásobovanie vodou a odvodňovanie, potravinársky, farmaceutický priemysel, čistenie odpadových vôd a elektrolýzu.
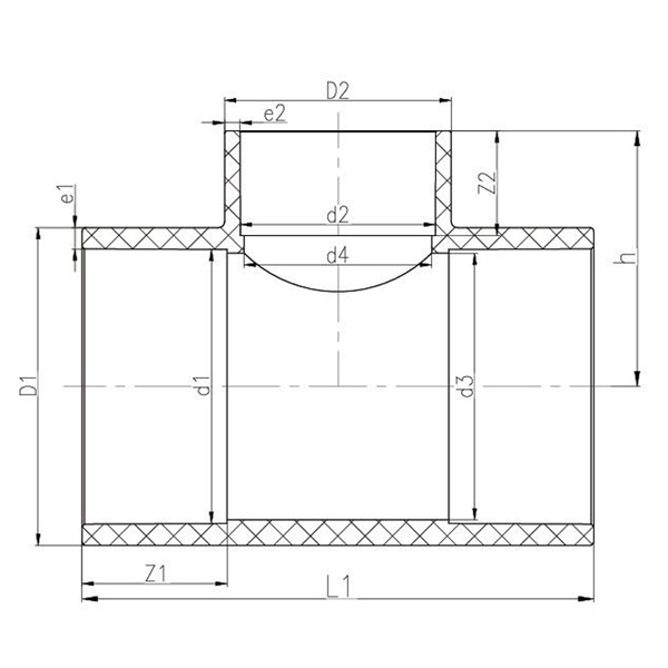
| Redukčné tričko FRPP |
| DN | D1 | D2 | d1 | d2 | d3 | d4 | L | h | Z1 | Z2 | e1 | e2 | ||||||||||||||||||||||||||
| 20*15 | 31.5 | 26 | 25 | 20 | 20 | 16 | 65 | 29.5 | 19 | 16 | 3.2 | 3 | ||||||||||||||||||||||||||
| 25*15 | 41 | 27 | 32 | 20 | 27 | 16 | 79.5 | 33.5 | 22 | 16 | 4.5 | 3.5 | ||||||||||||||||||||||||||
| 25*20 | 41 | 31.5 | 32 | 25 | 27 | 20 | 79.5 | 36.5 | 22 | 19 | 4.5 | 3.2 | ||||||||||||||||||||||||||
| 32*15 | 50 | 25.5 | 40 | 20 | 34 | 16 | 96 | 37.25 | 26 | 16 | 5 | 2.7 | ||||||||||||||||||||||||||
| 32*20 | 50 | 31.5 | 40 | 25 | 34 | 20 | 96 | 40.25 | 26 | 19 | 5 | 3.2 | ||||||||||||||||||||||||||
| 32*25 | 50 | 41 | 40 | 32 | 34 | 27 | 96 | 43.65 | 26 | 22 | 5 | 4.5 | ||||||||||||||||||||||||||
| 40*15 | 63 | 27 | 50 | 20 | 44 | 16 | 115.5 | 42.85 | 31 | 16 | 6.5 | 3.5 | ||||||||||||||||||||||||||
| 40*20 | 63 | 33 | 50 | 25 | 44 | 20 | 115.5 | 45.75 | 31 | 19 | 6.5 | 4 | ||||||||||||||||||||||||||
| 40*25 | 63 | 43 | 50 | 32 | 44 | 27 | 115.5 | 48.65 | 31 | 22 | 6.5 | 5.5 | ||||||||||||||||||||||||||
| 40*32 | 63 | 50.5 | 50 | 40 | 44 | 34 | 115.5 | 52.45 | 31 | 26 | 6.5 | 5.2 | ||||||||||||||||||||||||||
| 50*15 | 79 | 32.5 | 63 | 20 | 55 | 16 | 142 | 52 | 38 | 16 | 8 | 6.2 | ||||||||||||||||||||||||||
| 50*20 | 79 | 32.5 | 63 | 25 | 55 | 20 | 142 | 52 | 38 | 19 | 8 | 3.7 | ||||||||||||||||||||||||||
| 50*25 | 79 | 40.5 | 63 | 32 | 55 | 27 | 142 | 55.3 | 38 | 22 | 8 | 4.2 | ||||||||||||||||||||||||||
| 50*32 | 79 | 50 | 63 | 40 | 55 | 34 | 142 | 60 | 38 | 26 | 8 | 5 | ||||||||||||||||||||||||||
| 50*40 | 79 | 62.5 | 63 | 50 | 55 | 44 | 142 | 63.5 | 38 | 31 | 8 | 6.2 | ||||||||||||||||||||||||||
| 65*25 | 93.5 | 40.5 | 75 | 32 | 74 | 27 | 165 | 70.5 | 44 | 22 | 9.2 | 4.2 | ||||||||||||||||||||||||||
| 65*32 | 93.5 | 50 | 75 | 40 | 74 | 34 | 165 | 64 | 44 | 26 | 9.2 | 5 | ||||||||||||||||||||||||||
| 65*40 | 93.5 | 62.5 | 75 | 50 | 74 | 44 | 165 | 70 | 44 | 31 | 9.2 | 6.2 | ||||||||||||||||||||||||||
| 65*50 | 93.5 | 79 | 75 | 63 | 74 | 55 | 165 | 79 | 44 | 38 | 9.2 | 8 | ||||||||||||||||||||||||||
| 80*20 | 112 | 42 | 90 | 25 | 87 | 20 | 194.5 | 68.5 | 50.5 | 18.5 | 11 | 8.5 | ||||||||||||||||||||||||||
| 80*25 | 112 | 42 | 90 | 32 | 87 | 27 | 194.5 | 68.5 | 50.5 | 22 | 11 | 5 | ||||||||||||||||||||||||||
| 80*32 | 112 | 51.5 | 90 | 40 | 87 | 34 | 194.5 | 73.5 | 50.5 | 26 | 11 | 5.7 | ||||||||||||||||||||||||||
| 80*40 | 112 | 63 | 90 | 50 | 87 | 44 | 194.5 | 78.5 | 50.5 | 31 | 11 | 6.5 | ||||||||||||||||||||||||||
| 80*50 | 112 | 79 | 90 | 63 | 87 | 55 | 194.5 | 83 | 50.5 | 38 | 11 | 8 | ||||||||||||||||||||||||||
| 80*65 | 112 | 94 | 90 | 75 | 87 | 74 | 194.5 | 92 | 50.5 | 44 | 11 | 9.5 | ||||||||||||||||||||||||||
| 100*25 | 132.5 | 40.5 | 110 | 32 | 106 | 27 | 234.5 | 77 | 61 | 22.5 | 11.2 | 4.2 | ||||||||||||||||||||||||||
| 100*32 | 132.5 | 50 | 110 | 40 | 106 | 34 | 234.5 | 85 | 61 | 26 | 11.2 | 5 | ||||||||||||||||||||||||||
| 100 x 40 | 132.5 | 63 | 110 | 50 | 106 | 44 | 234.5 | 89 | 61 | 31 | 11.2 | 6.5 | ||||||||||||||||||||||||||
| 100 x 50 | 132.5 | 78.5 | 110 | 63 | 106 | 55 | 234.5 | 89 | 61 | 37.5 | 11.2 | 7.7 | ||||||||||||||||||||||||||
| 100*65 | 132.5 | 94 | 110 | 75 | 106 | 74 | 234.5 | 100 | 61 | 44 | 11.2 | 9.5 | ||||||||||||||||||||||||||
| 100 x 80 | 132.5 | 113 | 110 | 90 | 106 | 87 | 234.5 | 107 | 61 | 51 | 11.2 | 11.5 | ||||||||||||||||||||||||||
| 125*50 | 161 | 112.5 | 140 | 63 | 135 | 55 | 295 | 132.5 | 77 | 37.5 | 10.5 | 7.7 | ||||||||||||||||||||||||||
| 125*80 | 161 | 112.5 | 140 | 90 | 135 | 87 | 295 | 132.5 | 77 | 50.5 | 10.5 | 11.2 | ||||||||||||||||||||||||||
| 125*100 | 161 | 133 | 140 | 110 | 135 | 106 | 295 | 138.5 | 77 | 60.5 | 10.5 | 11.5 | ||||||||||||||||||||||||||
| 150*50 | 182 | 78.5 | 160 | 63 | 156 | 55 | 333 | 117.5 | 85.5 | 38 | 11 | 7.7 | ||||||||||||||||||||||||||
| 150*65 | 182 | 94 | 160 | 75 | 156 | 74 | 333 | 128.5 | 85.5 | 44 | 11 | 9.5 | ||||||||||||||||||||||||||
| 150*80 | 182 | 112 | 160 | 90 | 156 | 87 | 333 | 132.5 | 85.5 | 51 | 11 | 11 | ||||||||||||||||||||||||||
| 150 x 100 | 182 | 133.5 | 160 | 110 | 156 | 106 | 333 | 142.5 | 85.5 | 60.5 | 11 | 11.7 | ||||||||||||||||||||||||||
| 150 * 125 $ $ | 182 | 160.5 | 160 | 140 | 156 | 135 | 333 | 159.5 | 85.5 | 77 | 11 | 10.2 | ||||||||||||||||||||||||||
Detekcia netesností a trhlín v potrubných armatúrach Účinne kontrolovať potrubné armatúry pri netesnostiach, prasklinách alebo p...
READ MOREVplyv plastového chemického potrubia na prietok a tlak V zložitých chemických distribučných sieťach, Plastové chemické potrubie ...
READ MOREChemická kompatibilita určuje bezpečnosť a životnosť plastového ventilu Chemická kompatibilita je jedným z najdôležitejších faktorov pri výbere ...
READ MOREOdolnosť voči vysokej teplote — CPVC POTRUBNÉ TVAROVKY sú špeciálne navrhnuté tak, aby odolali vysokým teplotám,...
READ MORE